Проект S324

общая площадь:
395
жилая площадь:
291
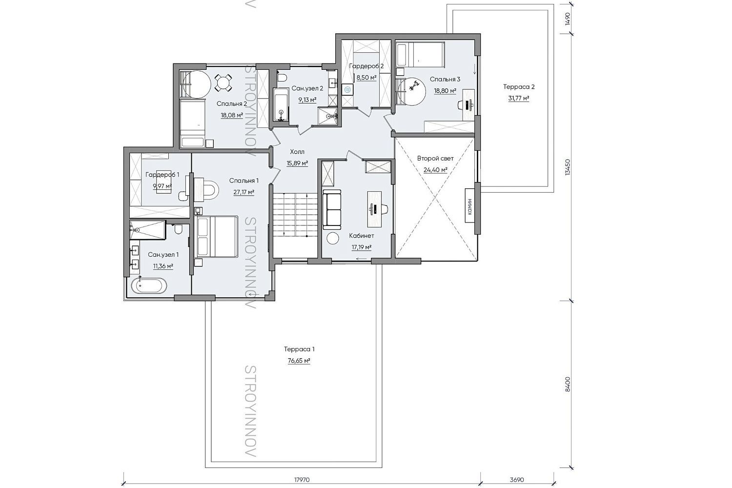
помещения:
  • Прихожая
  • Тех. помещение
  • Кухня-гостиная
  • 3 сан. узла
  • 3 спальни
  • Кинотеатр
  • Кабинет
  • 3 гардероба
  • Кладовая
  • 3 террасы
  • Навес на 2 авто
  • Второй свет
Заказать проект

Узнать стоимость
строительства дома

Напишите нам и мы выполним индивидуальный расчёт

Заполнить заявку

Планировка

Этаж — 1

О проекте

ВСЕ ХАРАКТЕРИСТИКИ
  • Габариты дома - 21,17 х 21,05 м  
  • Площадь застройки - 285 м2
  • Высота здания- 8,5 м
  • Площадь кровли - 334 м2

Дома, которые отвечают
высоким стандартам наших клиентов

Спроектируем неповторимый проект, который будет сочетать в себе комфорт и эстетику

Написать в WhatsApp

Проект в работе

Вам может понравиться

Есть вопросы?
Напишите нам!