Проект S328

общая площадь:
292
жилая площадь:
225
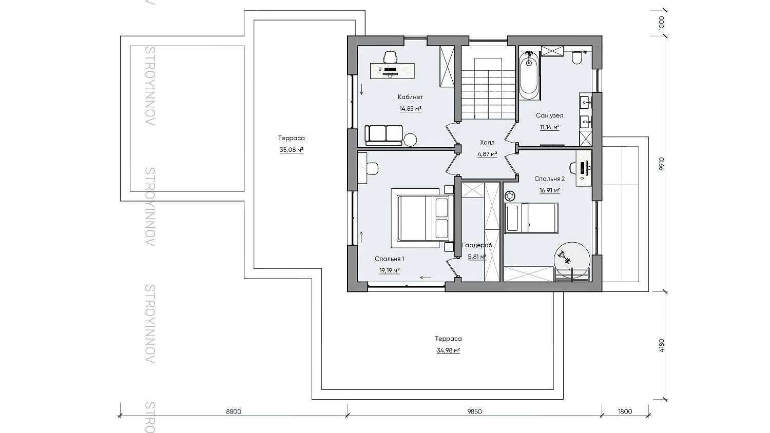
помещения:
  • Тамбур
  • Тех.помещение
  • Кухня-гостиная
  • 4 cпальни
  • 3 cан.узела
  • Гардероб
  • Кладовая
  • Постирочная
  • 2 террасы
Заказать проект

Узнать стоимость
строительства дома

Напишите нам и мы выполним индивидуальный расчёт

Заполнить заявку

Планировка

Этаж — 1

О проекте

ВСЕ ХАРАКТЕРИСТИКИ

  • Габариты дома - 20,45 х 15,09 м
  • Площадь застройки - 233 м2
  • Высота здания- 7,66 м
  • Площадь кровли - 211 м2

Дома, которые отвечают
высоким стандартам наших клиентов

Спроектируем неповторимый проект, который будет сочетать в себе комфорт и эстетику

Написать в WhatsApp

Вам может понравиться

Есть вопросы?
Напишите нам!