Проект S278

общая площадь:
257
жилая площадь:
181
помещения:
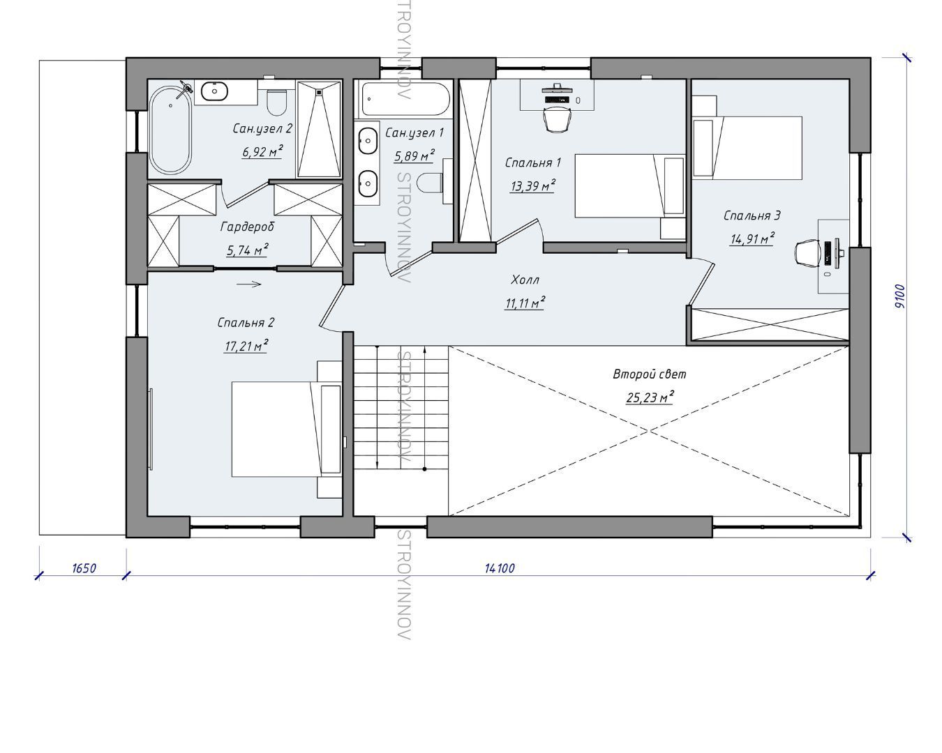
  • Прихожая
  • Тех. помещение
  • Кухня - гостиная
  • 3 cан.узла
  • 4 cпальни
  • 2 гардероба
  • Терраса
  • Второй свет
Заказать проект

Узнать стоимость
строительства дома

Напишите нам и мы выполним индивидуальный расчёт

Заполнить заявку

Планировка

Этаж — 1

О проекте

ВСЕ ХАРАКТЕРИСТИКИ

  • Габариты дома - 15,75 х 11,65 м
  • Площадь застройки - 160 м2
  • Высота здания- 7,94 м
  • Площадь кровли - 144 м2

Дома, которые отвечают
высоким стандартам наших клиентов

Спроектируем неповторимый проект, который будет сочетать в себе комфорт и эстетику

Написать в WhatsApp

Проект в работе

Построенные дома
по этому проекту

Вам может понравиться

Есть вопросы?
Напишите нам!