Проект S065

общая площадь:
203
жилая площадь:
152
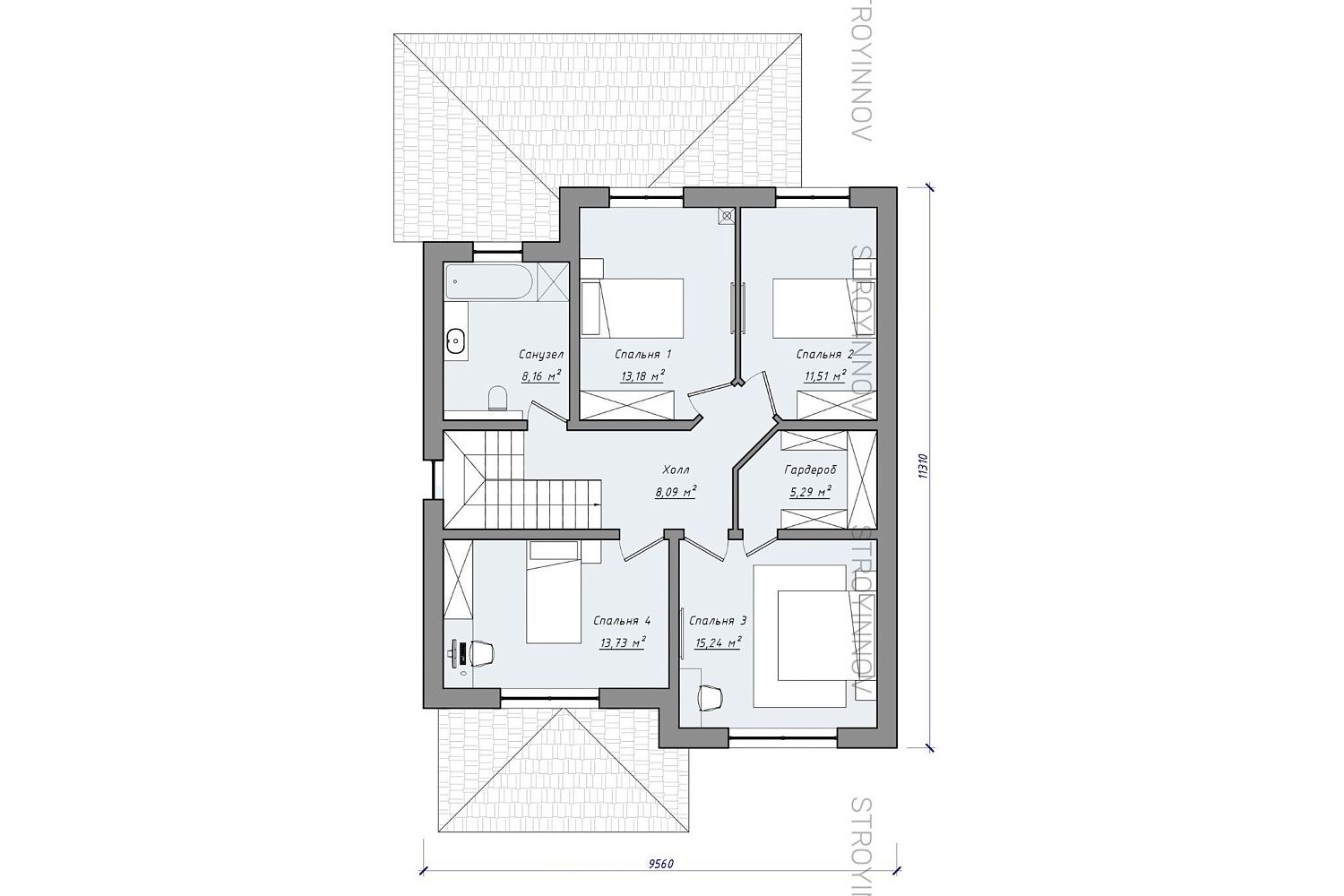
помещения:
  • Тамбур
  • Тех.помещение
  • Кухня-гостиная
  • 2 сан. узла
  • 4 спальни
  • 2 гардеробные
  • Кабинет
Заказать проект

Узнать стоимость
строительства дома

Напишите нам и мы выполним индивидуальный расчёт

Заполнить заявку

Планировка

Этаж — 1

О проекте

ВСЕ ХАРАКТЕРИСТИКИ

  • Габариты дома - 9,6 х 14,9 м
  • Площадь застройки - 130 м2
  • Высота здания - 8,4 м
  • Угол наклона кровли - от 16° до 18°
  • Площадь кровли- 193 м2

Дома, которые отвечают
высоким стандартам наших клиентов

Спроектируем неповторимый проект, который будет сочетать в себе комфорт и эстетику

Написать в WhatsApp

Проект в работе

Построенные дома
по этому проекту

Вам может понравиться

Есть вопросы?
Напишите нам!